For Sale

Phase 3 St Edmunds Gate, Bury St Edmunds

Residential Development Opportunity


Guide Price

Prime residential development site measuring 17.07 acres (6.91 ha).

Description

SUMMARY

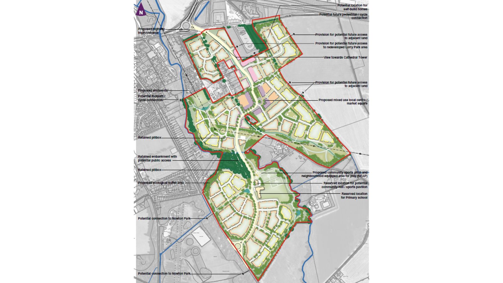
An exciting opportunity to acquire a self-contained, fully serviced residential development site measuring 17.07 acres (6.91 ha). The site can accommodate up to 200 dwellings with 30% affordable housing.

  • An excellent opportunity to be part of this new and exciting sustainable community.
  • Fully serviced and easily deliverable parcel once reserved matters have been granted.
  • Outline planning permission approved.
  • Excellent location, close to the centre of Bury St Edmunds with easy access to the A14 via the A134.
  • Offers sought on an “unconditional” basis.
  • For sale by informal tender.

DESCRIPTION

The parcel extends to approximately 17.07 acres (6.91 ha). It will form part of the third phase of the development,

The parcel is irregular in shape and is bound by Rougham Hill to the north, agricultural land to the east and the main spine road to the west, with proposed further residential dwellings to the south.

The master developer; Denbury Homes, has delivered the primary infrastructure to service the parcel, which will be accessed via a single bellmouth off the central spine road.

PLANNING

St Edmunds Gate is within the jurisdiction of West Suffolk Council, and the outline planning application was approved in March 2020 (ref.: DC/15/2483/OUT).

The approved outline planning permission will provide a natural extension to the eastern side of Bury St Edmunds with landscaped open space, 30% affordable housing, land for a new primary school, retail area and allotments.

Denbury Homes secured reserved matters for the principal infrastructure in September 2023 (ref.: DC/22/1804/RM). Furthermore, reserved matters was approved for the bridge over the River Lark in July 2024 (ref. DC/23/0978/RM).

The first phase of development for 174 homes is currently under construction, with marketing recently launched. Denbury’s first occupations are expected from Spring 2025.

The purchaser will be responsible for their own reserved matters application, which will allow up to 200 units with 30% affordable housing provision. As per the parameter plans, a 15m wide open space/green corridor will be required along the eastern boundary.

S106 AGREEMENT

The s106 agreement was signed on 6th March 2020 and includes financial contributions and a 30% affordable housing provision with a tenure split of 80% rental and 20% intermediate dwellings. Denbury will be responsible for all financial s106 contributions. Full details can be found within the s106 tracker contained within the Data Room.

CIL

West Suffolk Council has not yet adopted a CIL Charging Schedule; therefore, no CIL is payable.

TENURE

The site is to be sold freehold, with vacant Possession.

EASEMENTS, WAYLEAVES & RIGHTS OF WAY

The site is offered subject to all the existing easements, wayleaves and rights of way whether or not specifically referred to in these sales particulars.

SERVICES

The parcel will be fully serviced with the necessary connection points available from the bellmouth and the western boundary. Full details are contained within the Data Room.

Prospective purchasers are advised to make and rely upon their own enquiries with the relevant service providers.

VAT

Prospective purchasers should be aware that the purchase price will be subject to VAT and all offers should be clearly stated as a figure plus VAT.

METHOD OF SALE

Offers are invited by way of Informal Tender. The Sales Summary and Bidding Guidelines in the Data Room contain more information.

DATA ROOM

Access to a Data Room containing all relevant sales information, technical and planning information is available on request. For access, please contact the Selling Agent.

INSPECTIONS

Should be arranged by prior appointment with the selling agents.

Location

The parcel is located on the south-eastern edge of the highly desirable town of Bury St Edmunds. It forms part of the larger development known as St Edmunds Gate, which will comprise approximately 1,250 homes and include land for a primary school, allotments, retail area and extensive open space. The new development will have easy access to Bury St Edmunds and the A14, whilst benefitting from the Suffolk countryside on its doorstep.

Bury St Edmunds is a popular and well-regarded town with many shops and restaurants amongst the historical centre. The town has a well serviced railway station providing regular direct services to Cambridge and Ipswich, and London beyond. The site has good road connections, being close to the A14, which links the town to the wider road network including the M11 and A1.

The parcel is located towards the north-eastern corner of the wider development, off the main spine road linking Rushbrooke Lane to Sicklesmere Road.

The location will provide easy access to the local centre at heart of the scheme.

Bury St Edmunds
2 miles
London Stansted
40 miles
Norwich
45 miles
London Luton
67 miles
Headshot image of Joe Worboys" alt="">

The Agent:

Joe Worboys

Partner | Saffron Walden

More about Joe

More Properties

Skip to toolbar